
iO Petrópolis
Desenvolvimento
Wikihaus Inc.
Programa
Edifício Residencial Multifamiliar
Localização
Porto Alegre, RS, BR
Status
Construído
Ano
2020 - 2025
O edifício é o quarto produto iO - Inside Outside de projeto arquitetônico da OSPA, em parceria com a curadoria da Wikihaus.

O bairro
O empreendimento está localizado na cidade de Porto Alegre, no bairro Petrópolis, região caracterizada por conter edifícios majoritariamente residenciais, áreas com grande arborização e considerável comércio de bairro, como mercados, floriculturas e restaurantes.
Através do escalonamento, o empreendimento explora o relacionamento da edificação com o entorno: com menos pavimentos na parte da frente, a leitura desde a rua dá-se em uma escala mais humana, destacando-o dos demais.
Os terraços gerados por essa operação potencializam a área privativa, entregando às unidades espaços abertos que atuam como intermediadores entre a urbanidade e a vida íntima.
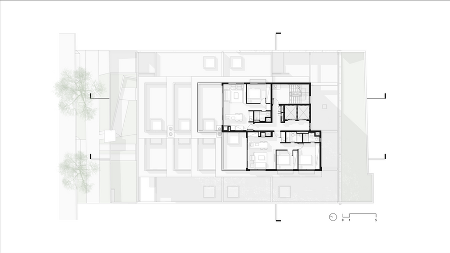
O empreendimento conta com 9 pavimentos de apartamentos, acessados por elevadores e escada, as circulações condominiais localizam-se no centro da edificação.
Ao todo, são 38 apartamentos, sendo 20 estudios, 3 apartamentos de 1 dormitório e 15 apartamentos com 2 dormitórios.

Destes, 7 apartamentos possuem terraço privativo, sendo que 5 apartamentos possuem gardens, que qualificam o espaço e a experiência do morador.
As áreas sociais dos apartamentos foram concebidas com esquadrias que aumentam a permeabilidade visual e amplificam a iluminação e ventilação natural.
As áreas condominiais estão localizadas no 12º pavimento e na cobertura da edificação, contando com terraço e democratizando as visuais do bairro para todos os moradores.
Equipe
SÓCIO RESPONSÁVEL | Aline Comiran, Carolina Souza Pinto
LÍDER DE PROJETO | Guilherme Silva
ESPECIALISTAS | Carolina Souza Pinto, Cristiano Carneiro, Franco Miotto
ARQUITETURA | Guilherme Silva, Guilherme Führ, Luigi Pedrollo
PAISAGISMO | Guilherme Silva, Guilherme Führ, Luigi Pedrollo
SINALÉTICA | Ellen Renata Bernardi, Franco Miotto
ELÉTRICA | Eduardo Mioto
GÁS | Juliana Nora, Julia Zarth
HIDRÁULICA | Juliana Nora, Julia Zarth
PPCI | Juliana Nora, Julia Zarth
Colaboradores
AQUECIMENTO COLETIVO | Tobio
CGI | Vista
CLIMATIZAÇÃO | Gilson Pirilo
ESTRUTURA | Simon Engenharia
FOTOGRAFIA | Gabriel Konrath
FUNDAÇÕES | Milititsky
IMPERMEABILIZAÇÃO | Ibel Engenharia
INTERIORES | TAO Arquitetura
SEGURANÇA PATRIMONIAL | Maguen
VEDAÇÕES | RPD Sistemas
VENTILAÇÃO MECÂNICA | Neoclima




































