
Matiz Moinhos
Development
Zuckhan + M Partners
Program
Multifamily Residential Building
Location
Porto Alegre, RS, BR
Status
Under construction
Year
2021
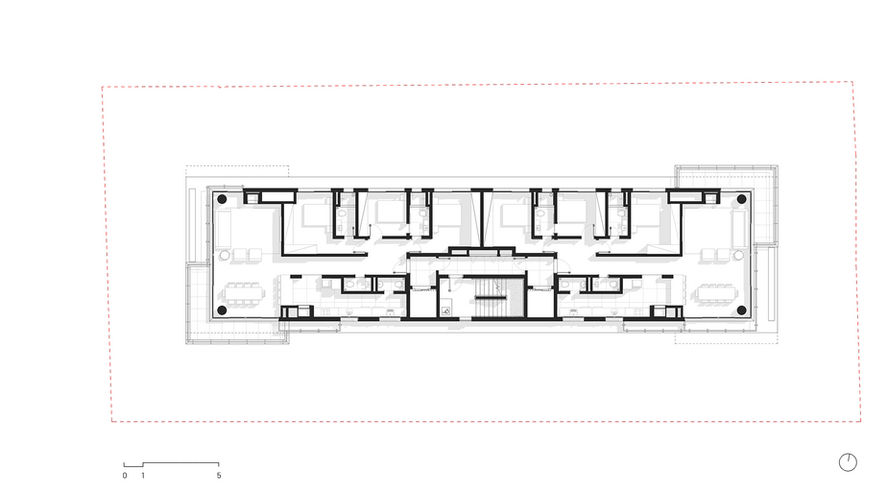
On a rectangular plot, the project is organized in a simple manner: front and back apartments, with the ends designated for social areas connected to staggered terraces between floors.

Exposed concrete slabs confer horizontality to the building's structure and serve as compartmentalization eaves.
This configuration ensures ample permeability through floor-to-ceiling windows, which are continuously present on three façades in the living area of each unit, blurring the boundaries between closed and open spaces: each living room resembles a large balcony.
The condominium areas are located both on the second floor—where the party room, kids' space, and gym are found—and on the rooftop, where a pool with a gourmet area allows any resident to enjoy panoramic views of the city, taking advantage of the elevated level of the plot in the city's topography.
Info
DEVELOPER | Zuckhan + M Partners
PROGRAM | Multifamily Residential Building
LOCATION | Porto Alegre, RS, BR
STATUS | Under construction
YEAR | 2021
PROJECT AREA | 6,348.79 sqm
SITE AREA | 1,081.89 sqm
Team
PARTNER IN CHARGE | Rodrigo Milani
PROJECT LEADER | Mariane Moraes
SPECIALISTS | Carolina Souza Pinto, Cristiano Carneiro, Franco Miotto, Lucas Obino
ARCHITECTURE | Guilherme Führ, Mariane Moraes, Cleder Freitas, Lucas Chagas
Collaborators
AIR CONDITIONING | B2P Engenharia
CGI | Vista
ELECTRICAL ENGINEERING | Optare
ENVIROMENTAL GRAPHIC DESIGN | MAENA design conecta
FIRE PROTECTION | Optare
GAS ENGINEERING | Optare
INTERIOR DESIGN | MAENA design conecta
LANDSCAPE | Creare Paisagismo
LIGHTING DESIGN | MAENA design conecta
PLUMBING ENGINEERING | Optare
SECURITY SYSTEM | Kravi
STRUCTURE | Carpeggiani Engenharia
SWIMMING POOL | Igui































