
iO Jaime Telles
Development
Wikihaus Inc.
Program
Multifamily Residential Building
Location
Porto Alegre, RS, BR
Status
Built
Year
2017 - 2021
Located in the Petrópolis neighborhood of Porto Alegre, the iO Jaime Telles is the second development in the "iO Inside Outside" line, a collaboration between OSPA and Wikihaus Inc.

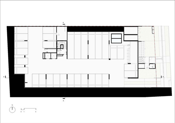
Scaling
The ground floor of the building is elevated on pilotis and features an inviting grandstand nestled between the body of the edifice and the garden, serving as one of the connecting elements between the building and the neighborhood.
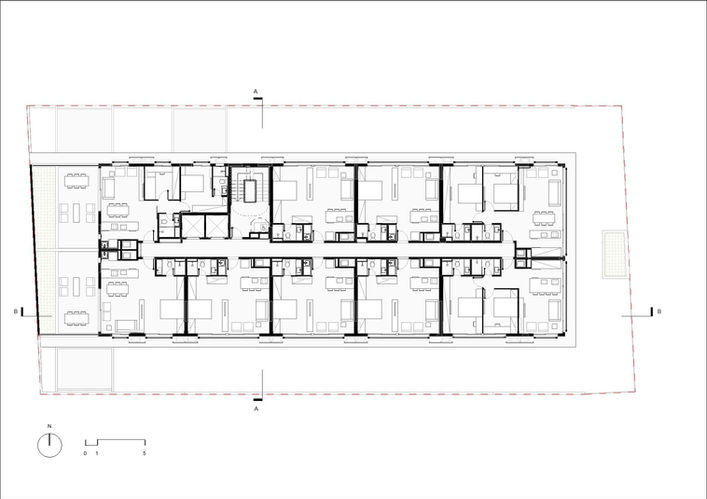
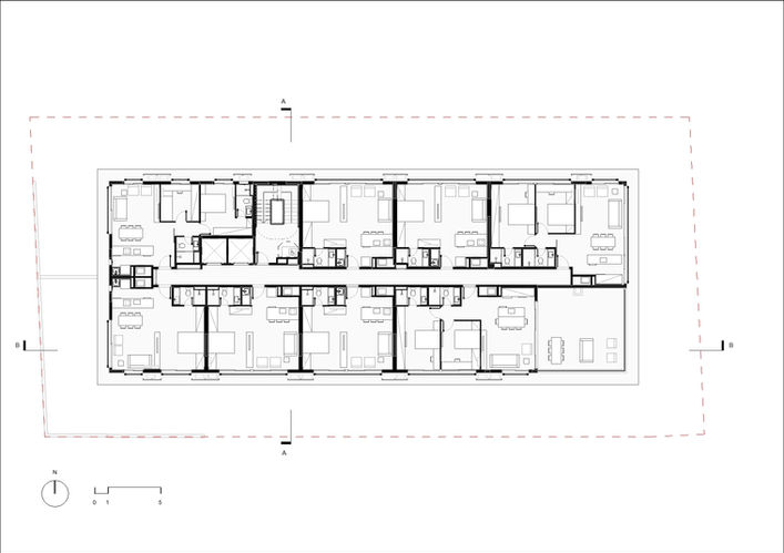
Through staggered design, the development explores its relationship with the surroundings: with fewer floors at the front, the view from the street is on a more human scale, harmonizing with the local context.
The terraces resulting from this approach enhance the private area, providing open spaces to the units that act as intermediaries between urban life and intimate living.
The terraces resulting from this approach enhance the private area, providing open spaces to the units that act as intermediaries between urban life and intimate living.
The terraces resulting from this approach enhance the private area, providing open spaces to the units that act as intermediaries between urban life and intimate living.
Completed work
Check out more photos of the development!
Team
PARTNER IN CHARGE | Aline Comiran
PROJECT LEADER | Bruna Ibrahim, Brunna Kronbauer
SPECIALISTS | Carolina Souza Pinto, Cristiano Carneiro, Lucas Obino
ARCHITECTURE | Bruna Ibrahim, Brunna Kronbauer, Ellen Renata Bernardi
LANDSCAPE | Bruna Ibrahim, Brunna Kronbauer
ENVIRONMENTAL GRAPHIC DESIGN | Ellen Renata Bernardi, Franco Miotto
ELECTRICAL ENGINEERING | Jefferson Geraldi, Fernando Evaldt, Julia Zarth
GAS ENGINEERING | Juliana Nora, Julia Zarth
PLUMBING ENGINEERING | Juliana Nora, Julia Zarth
FIRE PROTECTION | Juliana Nora









































