
CMSJP
Development
Câmara Municipal de São José dos Pinhais
Program
Institutional
Location
São José dos Pinhais, PR, BR
Status
Idea
Year
2013 - 2014
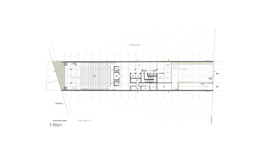
The building attached to the City Hall of São José dos Pinhais is designed to accommodate parliamentary offices, support for the development of activities inside the building.

The public building is connected to the existing square at the back of the land through the opening of the auditorium.
The relationship happens because the environment was designed in such a way that it can be opened to the street; thus, it is possible to carry out events integrating both spaces.
As an urban gesture, the main entrance is set back, creating a square area in front of the building.
Info
DEVELOPER | Câmara Municipal de São José dos Pinhais
PROGRAM | Institutional
LOCATION | São José dos Pinhais, PR, BR
STATUS | Idea
YEAR | 2013 - 2014
PROJECT AREA | 4,992.81 sqm
SITE AREA | 858.32 sqm
Team
PARTNER IN CHARGE | Cristiano Carneiro
COORDINATOR | Cristiano Carneiro
ARCHITECTURE | Carolina Souza Pinto, Lucas Obino, Cristiano Carneiro, Franco Miotto, Aline Comiran, Augusto Tumelero, Bruna Benner, Catherine Capellari, Eduardo Kopittke, Manoela Conte, Ellen Renata Bernardi
CGI | Cristiano Carneiro, Eduardo Kopittke

























