
Polar and Climatic Center
Development
UFRGS
Program
Institutional
Location
Porto Alegre, RS, BR
Status
Idea
Year
2012 - 2013
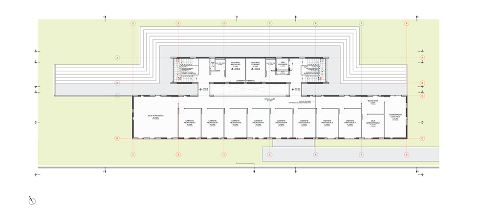
Used for study and research on polar climate, the PCC is developed to house cold chambers and laboratories for analysis of ice samples; rooms for events, lectures and exhibitions; and rooms for students and teachers.

Belonging to UFRGS, the space is a pioneer in such research in South America, which reinforces the unique character of the project.
The spaces are distributed over the four floors, each floor being directed to one of the needs of the building.
The Polar and Climate Center meets the demands of the Ministries of Education, Science and Technology and Defense.
OSPA is responsible for developing the project from its conception to the executive project, including the complementary projects.
Info
DEVELOPER | UFRGS
PROGRAM | Institutional
LOCATION | Porto Alegre, RS, BR
STATUS | Idea
YEAR | 2012 - 2013
PROJECT AREA | 2,032.40 sqm
SITE AREA | 11,500.00 sqm
Team
PARTNER IN CHARGE | Carolina Souza Pinto
COORDINATOR | Franco Miotto
ARCHITECTURE | Carolina Souza Pinto, Lucas Obino, Cristiano Carneiro, Franco Miotto, Daniele Tubino, Bruna Feltes, Erika Hartmann, Louise Serraglio, Luísa Dornelles, Roberto Flores, Thiago Costa
ENVIRONMENTAL GRAPHIC DESIGN | Carolina Souza Pinto, Luísa Dornelles
CGI | Franco Miotto
ACOUSTICS | Luciano Nabinger
AIR CONDITIONING | Flávio Teixeira
ELECTRICAL ENGINEERING | Manoel Coelho, Pedro Mallmann, Ricardo Keller
FIRE PROTECTION | Pedro Mallmann, Ricardo Keller
PLUMBING ENGINEERING | Pedro Mallmann, Ricardo Keller
STRUCTURE | Paulo Stumm, Daiana Sanches























