
Casa
Terraville III
Desenvolvimento
Privado
Programa
Residencial Unifamiliar
Localização
Porto Alegre, RS, BR
Status
Ideia
Ano
2014 - 2015
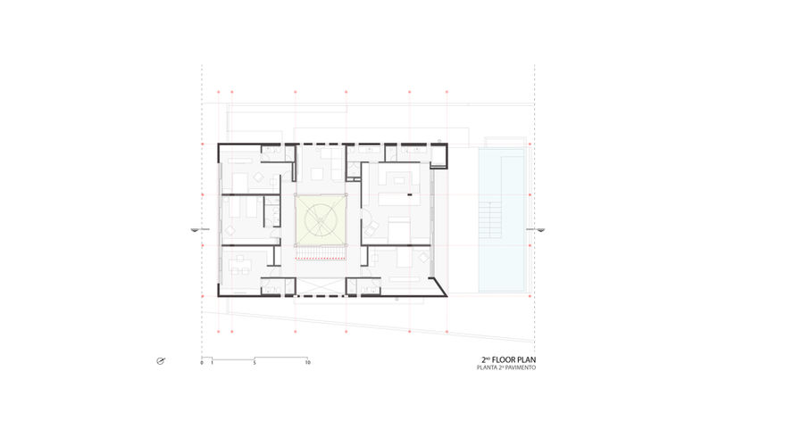
A casa, projetada em terreno de 1.067,26 m² no condomínio Terraville, é dividida em área social, no primeiro pavimento, e área íntima, no segundo pavimento.

Layout
O projeto permite a composição de diferentes ambientes, tornando a residência mais versátil e adaptável ao morador.
No primeiro andar, os planos envidraçados fornecem aberturas para a natureza.
Com o mesmo objetivo, no andar superior, a casa abre visuais para o lago na porção posterior do lote, aproveitando o nível mais elevado.
Integração
Por fim, o pátio interno leva luz solar e ventilação para o interior da residência e cria uma área de circulação no seu interior.
Info
DESENVOLVEDOR | Privado
PROGRAMA | Residencial Unifamiliar
LOCALIZAÇÃO | Porto Alegre, RS, BR
STATUS | Ideia
ANO | 2014 - 2015
ÁREA DO PROJETO | 624,00 m²
ÁREA DO TERRENO | 1.067,86 m²
Equipe
SÓCIO RESPONSÁVEL | Carolina Souza Pinto
COORDENAÇÃO | Cristiano Carneiro
ARQUITETURA | Carolina Souza Pinto, Lucas Obino, Cristiano Carneiro, Franco Miotto, Aline Comiran, Ellen Renata Bernardi, Augusto Tumelero, Matheus Lorenzet, Luiza Andreis, Graziela Venzon, Manoela Conte, Guilherme Silva
INTERIORES | Carolina Souza Pinto, Lucas Obino, Cristiano Carneiro, Franco Miotto, Aline Comiran, Ellen Renata Bernardi, Augusto Tumelero, Matheus Lorenzet, Luiza Andreis, Graziela Venzon, Manoela Conte, Guilherme Silva
CGI | Franco Miotto
ELÉTRICA | Fernando Chiapinotto
CLIMATIZAÇÃO | Flávio Teixeira
HIDRÁULICA | Ricardo Keller






















